Проекты бань из оцилиндрованного бревна
Бани из оцилиндрованного бревна пользуются огромной популярностью. Данный материал представляет собой бревно, которое обрабатывается на специальном фрезерном оборудовании и обтачивается со всех сторон по всей длине.
Преимущества бревна
Оцилиндрованное бревно – это один из самых распространенных материалов для постройки жилых и нежилых помещений. Это неудивительно, ведь оно обладает многими преимуществами:
- экологичность, так как древесина – стопроцентно натуральный материал. Он не вызывает раздражений, аллергию и не выделяет токсических веществ;
- дерево имеет свойство «дышать», за счет чего обеспечивает отличную вентиляцию в помещении, что очень важно для бани, где высокий уровень влажности;
- простота монтажа. Бревна реализуются комплектами с определенным размером, что дает возможность собрать большую конструкцию за несколько дней;
- при высокой температуре в бане, дерево выделяет масла и смолы, которые благоприятно влияют на человеческий организм;
- влагостойкость и пожарная безопасность, которая регулируется специальными пропитками перед началом монтажных работ.
Проекты бань
Перед постройкой бани необходимо провести подготовительную работу, в которую войдут следующие факторы.
- Во-первых, важно определиться с размерами постройки. Они напрямую будут зависеть от использования если это банька дома, где живут 2-3 человека, достаточно небольшой постройки 383 метра. Если же планируется зона отдыха, то можно выстраивать много габаритную постройку на несколько комнат, этажей, с бассейном, комнатой отдыха и прочими «фишками».
- Во-вторых, нужно продумать планировку и квадратуру.
- В-третьих – закупить материалы для будущей баньки.
Популярные проекты бань из оцилиндрованного бревна
Баня, площадью 33, 22 м2. Размеры постройки 8х4.1 м. перед входом сразу построен гардероб, в котором можно переодеться и оставить свои вещи. Далее размещается комната отдыха, размеров 9.66 м2. После нее построен небольшой коридорчик, из которого есть два входа – в душевую и в парильную комнату. Данный проект считается самым оптимальным в соизмерении цены, размера и качества.
Шикарная огромная баня, общей площадью 89.46 м2. Основным преимуществом являются наличие двух веранд, одной внутренней, а второй – открытой, что позволят отдыхать в данной бане в любое врем года.
Читайте также оптимальный размер парилки и совмещаем парилку и помывочную в бане
Проект предполагает габариты 14х10.5 метров. Кроме внутренних помещений в бане предусмотрены летние террасы и веранды. Кроме этого, внутри предусмотрена большая комната отдыха и несколько спален.
Баня из оцилиндрованного бруса общей площадью в 51 м2 внутреннего помещения и 88.8 м2 с уличной террасой. Вход с улицы предполагает сразу размещение террасы, габариты которой позволяют установить стол и стулья/кресла/диваны для отдыха. Далее размещается комната отдыха и выход через моечную в парилку. Топочная в данном проекте находится отдельно.
Баня с размерами 7.5х8.5 метров дает возможность собрать друзей или большую семью. С улицы сразу размещается тамбур, из которого выход в комнату отдыха. Кроме этого проект предусматривает открытую пристроенную веранду с мангалом. Бассейна внутри нет, есть отдельный санузел, душевая и парильная комната. В такой постройке можно отдохнуть и летом, и зимой. Даже если не париться, баню можно использовать в качестве зоны отдыха, так как бревно отлично держит тепло и слегка протопив можно обеспечить помещение теплом на длительное время.
Читайте также:
Постройка бани, габаритами 10.1х10.3 – это отличная зона отдыха, которая может одновременно собрать большое количество людей. Постройка предполагает 2 террасы – летнюю и зимнюю. 2 зоны отдыха, в одной из которых можно сделать столовую, а в другой спальню. Из душевой два выхода – в парильную и в бассейн.
Компактная постройка порадует каждую частную территории. Проект предполагает баню площадью 23.2 м2. Первым делом с улицы расположен небольшой коридорчик, площадью 2.8 м2, далее выход в комнату отдыха, размером 11.2 м2. Из нее выход в моечную, откуда и можно попасть в небольшую парную (4.9м2).
Маленькая, но достаточно уютная постройка в 13.9 м2 предполагает три компактных помещения – веранду, комнату отдыха и парильную. Такой вариант отлично подойдет для дачи или для частного дома, где проживает небольшое количество человек. В такой бане можно париться одному или вдвоем. Больше людей такая постройка не вместит.
Банька из бревна 20.4 м2 станет прекрасной зоной для мытья, оздоровления и отдыха в кругу семьи или друзей. Достаточно большая комната отдыха – 10.3 м2 дает возможность вместить большое количество людей. Моечная достаточно компактная – 3,5 м2, а парильная – 4.4 м2, к сожалению, много людей одновременно вместить не сможет. Такая постройка быстро прогревается и длительное время держит тепло, за счет своих компактных габаритов и древесины, отличающейся низкой теплопроводностью.
16,9 м2 – это идеальные габариты для отдыха с любимым человеком или небольшой семьей. Такая постройка отлично пометится даже на дачном участке. Это прекрасное решение для тех, кто любит попариться. Маленькая парильная быстро прогревается и при желании ее можно топить хоть каждый день (если нет противопоказаний по состоянию здоровью). Не смотря на скромные размеры внутри размещается моечная, парильная и комната отдыха на 7 м3, что позволяет вместить несколько человек.
Баня из сруба 6.6х3.4 отличается небольшими габаритами, что дает возможность возвести данную постройку на любом участке. Проект предполагает наличие прихожей, комнаты отдыха, душевой и парильной комнаты. За счет экологически чистых материалов для постройки получается оздоровительная баня, в которой можно париться, исцеляя душу и тело.
Казалось бы, маленькая баня, общей площадью 23 м2, при грамотном подходе может вместить террасу для отдыха, раздевалку, топочную, парильную и моечную комнаты. Сама по себе постройка отличается небольшими габаритами, что дает возможность возвести ее за считанные дни. Креме этого, такая баня поместится даже на самом маленьком приусадебном участке.
Еще один компактный проект бани 22.3 м2 позволяет после парильни насладиться чашечкой чая в комнате отдыха. Проект предусматривает два этажа. Внизу размещается моечная и парильная, а наверху спальня и комната отдыха.
Маленькая деревянная постройка в 13.4 м2 может вместить небольшую парильную, моечную и предбанник. При желании его можно совместить с небольшой комнатой отдыха. Для этого достаточно установить стол и в данной бане можно полноценно отдыхать самому или в тесном кругу друзей.
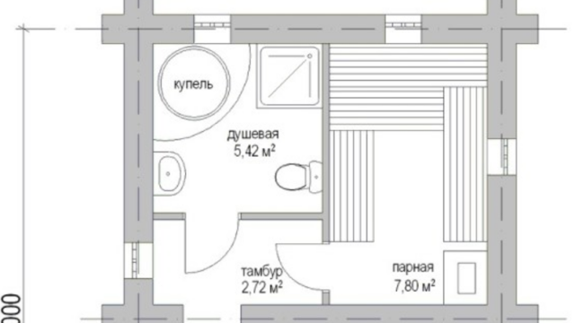
Деревянная баня из бревна, размерами 7.7х6.4 достаточно вместительная и позволяет полноценно разместить все необходимые помещения: предбанник, комнату отдыха, раздельный санузел с душем и туалетом, летнюю пристройку (террасу), парилку и бассейн в 4 м2.
Банька с летней верандой станет лучшей зоной отдыха в любое время года. Общие размеры 4.5х6.5 м2. Терраса для летнего отдыха занимает 7.7. м2, что позволяет разместить вместительный стол и барбекю. Комната отдыха занимает 8.8 м2, что позволяет установить или стол, или кровать и использовать ее, как спальню. По проекту парная и душевая одинаковых размеров – по 4.3 м2.
5х6.5 м2 – это оптимальные размеры для бани или сауны из бревна. Внутри такой постройки вмещаются все необходимые помещения – комната отдыха, парная, душевая или моечная, небольшой санузел. Согласно проекту 2.99 м2 занимает крыльцо, на котором можно установить небольшой столик и сделать мини-террасу для чаепития.
Еще один простой и вместительный проект, предполагающий крытую веранду, достаточно большую комнату отдыха почти в 15 м2, 9.85 м2 – территория бассейна и 5.29 – парная комната.
Баня 7.2х5.4 м. Такой проект может быть реализован в качестве развлекательно-оздоровительного комплекса или построен на территории собственного дома для отдыха или приема гостей. Внутри помещается все необходимое.
Парилка, габаритами 4.71 м2 позволяет вместить до 4 человек одновременно. Кроме моечной в проекте предусмотрена комната отдыха, габаритами 11.6 м2. Отдельный санузел и веранда на улице – что еще нужно для качественного отдыха.
В завершение хотелось бы отметить, что баня из оцилиндрованного бруса может быть любого размера и конструкции. Материал выдерживает и два, и три этажа. Все зависит от желания, возможностей, финансовой стороны и пространства на участке, которое можно занять постройкой бани.










































