Жилая баня: проекты с фото
Жилая баня должна обеспечивать возможность комфортного пребывания в ней на постоянной основе как минимум для двух-трёх человек. Это может быть как круглогодичное проживание, так и сезонное. В первом случае прийдётся позаботиться эффективной системой отопления и обустроить качественную теплоизоляцию всех помещений. Если же постройка рассчитывается на пребывание в ней только в период тёплого времени года, теплозащита и отопление не потребуют значительного вложения сил и средств.
Проект каркасной бани 6.7х5 м с жилыми комнатами
Данная баня имеет два этажа, первый из которых включает все требуемые для удобного проживания функциональные помещения, а также парное отделение. На втором мансардном уровне располагается просторная спальня, позволяющая разместить большую двухспальную кровать и ещё небольшой диван. Вместе со спальным местом внизу, на первом этаже, постройка вполне подходит для небольшой семьи из трех человек. А при необходимости может вместить ещё и одного гостя.
Постройка в своей основе имеет мелкозаглубленный ленточный фундамент с буронабивными сваями. Коробка стен изготовлена из деревянного каркаса, обшитого ОСП (OSB) плитами. Утепление по стенам выполнено из базальтовой ваты толщиной 150 мм, потолок первого этажа имеет теплозащитный слой 200 мм. Мансарда также утеплена для зимнего проживания.
Вот так выглядят все помещения внутри конструкции. Как видно, несмотря на компактные габариты, жилого пространства в бане достаточно много. Кухня снабжена барной стойкой, которая отгораживает пространство для приготовления пищи от удобного дивана.
На фото мансарды можно видеть вариант для проживания семьи с маленьким ребёнком.
Парная отделана вагонкой в классическом стиле и снабжена деревянной дверью со стеклянной вставкой. Разогревает небольшое помещение печь от завода Теплодар под названием Сибирь 20 ЛК. Выходя из парилки можно сразу пройти в санузел, где есть возможность зайти в душевую кабинку и охладиться после банных процедур.
Постройка используется в течение всего года и имеет подвод воды от централизованной системы, питающейся из одной скважины, установленной на весь посёлок. Баню таких габаритов с успехом отапливает котёл мощностью 3 кВт, а нагрев воды для бытовых нужд осуществляется электрическим водонагревателем.
Каркасная жилая баня 6,5х6,5 м для большой семьи
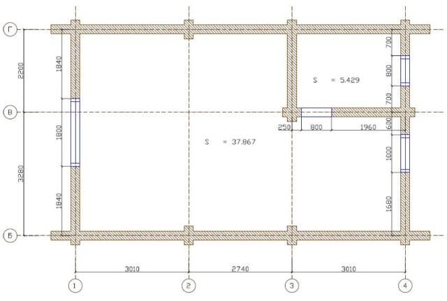
Такой проект будет отличным выбором для семьи из нескольких человек, которая собирается проживать в бане с возможностью иметь максимально комфортные жилищные условия. Три спальни на мансардном уровне, плюс жилые комнаты нижнего яруса легко вместят семью из четырех человек. А при необходимости без проблем обеспечат дополнительное пространство, которого хватит на размещение друзей или близких, прибывших ненадолго погостить.
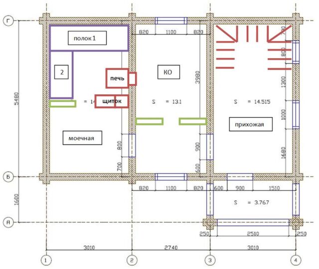
Размеры свободной площади первого этажа позволяют в столовой размерами 4х2,7 м установить кухонную мебель с габаритами, недоступными в большинстве современных квартир. Удобство готовки для хозяйки дома гарантировано, а размеры столешниц способны вместить любое количество современной бытовой техники. К кухне примыкает большая комната (зал) 4х5 метров.
Парилка 2.х2.7 метра выходит в небольшую помывочную 2,7х1,6 м, где установлена удобная душевая кабина.
Отопление зимой обеспечивается печкой, размещенной в парилке. Для этого специально была выбрана модель Гармония ПС-7 2014 от завода Ферингер.
Проект сруба из оцилиндрованного бревна 6х9 м
Оригинальный внешний вид этой бани прекрасно смотрится на участке, а материал стен выглядит богато и привлекательно, являясь одновременно удачным выбором как для возведения частного дома, так и для банной постройки.
Внутренние перегородки отделаны деревянным блок-хаусом, создавая общий бревенчатый рисунок с внутренней поверхностью стен коробки здания.
Второй этаж рассчитан на одно просторное помещение, которое наиболее подходит для спальной комнаты. Кирпичная труба в центре помещения — это дымоход из парилки, который во время протопки печи будет умеренно тёплым.
Жилая баня 6х6 с мансардой
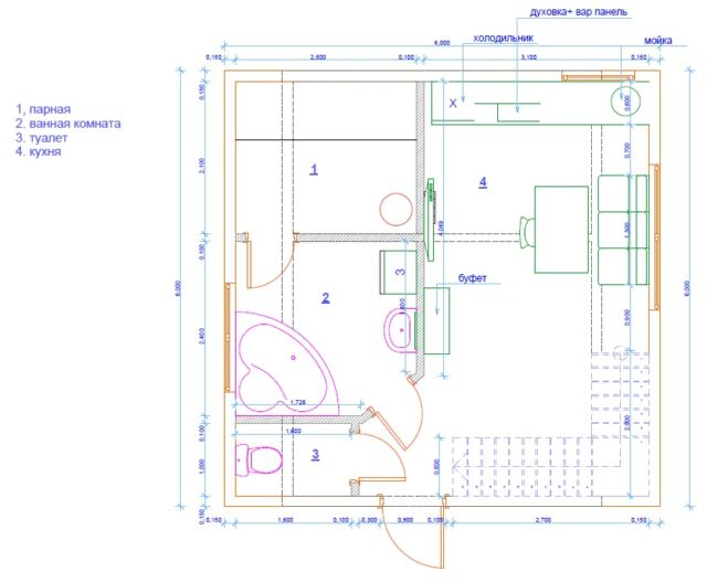
Ещё одна каркасная постройка с удачной планировкой. Первый этаж встречает просторной гостиной совмещённой с кухней. В то же время, практически напротив входной двери располагается проход в помывочную, из которой можно сразу попасть и в парилку.
Второй этаж спроектирован таким образом, что поднимаясь по лестнице человек заходит в большую проходную спальню с двухспальной кроватью. Смежная комната также достаточно просторная и может служить детской комнатой или гостевым помещением.
Площадь первого этажа вполне достаточная, чтобы уместить комфортную кухню, небольшой диван с обеденным столом. Под парильное отделение также отдано существенное количество места, и с размерами 2,5х2,1 метра оно может считаться полноценным помещением для принятия банных процедур. Добавляет удобства в планировку ещё и тот факт, что проектировщикам удалось расположить туалет и моечную в раздельных комнатах.






































